«Меркурий»
75-этажный жилой небоскреб с апартаментами в «Москва-Сити»
от 75 м²
площадь апартаментов
от 51 900 000 ₽
стоимость апартаментов
Презентация комплекса
Внутри — расположение комплекса, архитектура и инфраструктура
PDF 10.31 MB.
Время скачивания файла - 5 секунд
Презентация комплекса
Внутри — расположение комплекса, архитектура и инфраструктура
← Можно пролистнуть →
Отправляя заявку, вы даёте своё согласие Я полностью ознакомился и согласен с Пользовательским соглашением, Политикой обработки персональных данных и файлов Cookie, и предоставляю конкретное, предметное, информированное, сознательное и однозначное Согласие на обработку моих персональных данных. на обработку персональных данных.
Наш сайт защищен с помощью reCAPTCHA и соответствует Политике конфиденциальности и Условиям использования Google.

О комплексе «Меркурий»

Рассказывают брокеры
Небоскрёб премиум-класса
МФК «Меркурий» — 75-этажный небоскреб в бизнес-центре «Москва-Сити». Носит звание самой яркой, «золотой» башни во всём «Сити» — среди синих и зеленых стекол окружающих зданий «Меркурий» сверкает насыщенным медно-золотым блеском.
Expert 1
Наталья
Партнёр компании
Удобное расположение
Башня «Меркурий» находится в деловом центре «Москва-Сити». В пяти минутах от станций метро «Выставочная» и «Деловой центр». В 700 метрах от комплекса оборудован удобный выезд на ТТК, по которому можно за несколько минут добраться до Кутузовского проспекта или Звенигородского шоссе.
Expert 2
Алексей
Партнёр компании
Пятизвездочный консьерж-сервис
Каждый житель «Золотой башни» может воспользоваться службой консьержа, заказать уборку в апартаментах и прочие необходимые дополнительные услуги.
Expert 3
Анна
Партнёр компании

Планировки и цены апартаментов

Вы можете выбрать и купить апартаменты в башне «Меркурий» в нашем разделе с планировками и ценами.
от 83 000 000 ₽
от 728 000 ₽ за м2
от 114 м2
Это типовая планировка, а не квартира. Альбом со всеми планировками можно скачать на сайте. Посмотреть все лоты можно переключив фильтр справа.
от 262 600 000 ₽
от 1 300 000 ₽ за м2
от 202 м2
Это типовая планировка, а не квартира. Альбом со всеми планировками можно скачать на сайте. Посмотреть все лоты можно переключив фильтр справа.
С Студия
1 спальня
2 спальни
3 спальни
4+ спальни
Другие варианты планировок:
1
1
Стоимость
$ £
Стоимость
$ £
Площадь
м²
Площадь
м²
С
Добавить к выбору
Студия
1
Добавить к выбору
спальня
2
Добавить к выбору
спальни
3
Добавить к выбору
спальни
4+
Добавить к выбору
спальни
Сначала дешевле
Дополнительные опции
Рисуем планировку,
но на просмотр в офис продаж можно пойти уже сейчас. Оставьте заявку и мы всё устроим.
Апартаменты с 1 спальней
51 900 000 ₽ 0 ₽ в месяц
1 спальня
С отделкой
75 м²
Лот #306020
interior-lot-167843
interior-lot-167843
interior-lot-167843
interior-lot-167843
interior-lot-167843
interior-lot-167843
interior-lot-167843
interior-lot-167843
interior-lot-167843
Апартаменты с 1 спальней
79 000 000 ₽ 0 ₽ в месяц
1 спальня
С отделкой
99 м²
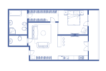
Просторные апартаменты с одной спальней общей площадью 99 м² на пятидесятом этаже в башне «Меркурий». Интерьер оформлен в современном стиле с использованием натуральных материалов. Комнаты декорированы многоуровневыми потолками с подсветкой и декоративными молдингами. Апартаменты полностью меблированы и укомплектованы бытовой техникой. Функциональная планировка включает кухню-гостиную, спальню с собственным санузлом и вместительной гардеробной, гостевой санузел и прихожую. Благодаря панорамному остеклению пространство наполнено естественным светом и теплом, открываются виды на север города и башни «Москва-Сити».
Лот #302547
plan-lot-167835
Апартаменты с 1 спальней
83 000 000 ₽ 0 ₽ в месяц
1 спальня
С отделкой
114 м²
Лот #235283
plan-lot-167845
Апартаменты с 1 спальней
85 500 000 ₽ 0 ₽ в месяц
1 спальня
С отделкой
110 м²
Лот #309798
interior-lot-167833
interior-lot-167833
interior-lot-167833
interior-lot-167833
interior-lot-167833
interior-lot-167833
interior-lot-167833
interior-lot-167833
interior-lot-167833
interior-lot-167833
interior-lot-167833
interior-lot-167833
interior-lot-167833
interior-lot-167833
interior-lot-167833
interior-lot-167833
interior-lot-167833
interior-lot-167833
interior-lot-167833
interior-lot-167833
interior-lot-167833
interior-lot-167833
interior-lot-167833
interior-lot-167833
Апартаменты с 1 спальней
86 000 000 ₽ 0 ₽ в месяц
1 спальня
С отделкой
114 м²
Видовые апартаменты с 1-й спальней площадью 114 м² находятся на 49 этаже башни «Меркурий» в комплексе «Москва-Сити». В апартаментах выполнен авторский ремонт в современном стиле. Апартаменты частично меблированы, оснащены бытовой техникой и системой кондиционирования. Планировка включает просторную кухню-гостиную с панорамными окнами, спальню с персональным санузлом, просторных холл, гардеробную и гостевой санузел. Из окон открываются виды на Москву-реку и соседние башни комплекса.
Лот #214434
interior-lot-167831
interior-lot-167831
interior-lot-167831
interior-lot-167831
interior-lot-167831
interior-lot-167831
interior-lot-167831
interior-lot-167831
interior-lot-167831
interior-lot-167831
interior-lot-167831
interior-lot-167831
interior-lot-167831
interior-lot-167831
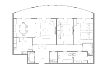
Апартаменты с 2 спальнями
150 000 000 ₽ 0 ₽ в месяц
2 спальни
С отделкой
122 м²
Видовые апартаменты с 2-мя спальнями общей площадью 122 м² в башне «Меркурий» на 50 этаже. Выполнен дизайнерский ремонт в современном стиле. Интерьер оформлен в лаконичных светлых тонах, в отделке использовано натуральное дерево. Из панорамных окон открывается вид на город и Москву-реку. Планировка: кухня-гостиная, 2 спальни, 2 санузла, гардеробная, холл. Апартаменты полностью укомплектованы мебелью, кухня оснащена встроенной техникой Miele. В угловой гостиной спланирована зона отдыха с уютным диваном и домашним кинотеатром. В ванной комнате оборудована сауна.
Лот #164589
Продайте свои апартаменты в МФК «Меркурий»
Оставьте заявку, эксперт проекта свяжется с вами, соберёт всю нужную информацию и сразу приступит к работе.
Продать апартаменты
Алексей Алексей
plan
plan2
Алексей, Партнёр компании
light light
light light
lamp

Презентация башни «Меркурий»

Расположение, архитектура и инфраструктура многофункционального комплекса «Меркурий» в нашей pdf-презентации.
PDF 10.31 MB. Время скачивания 5 секунд.
Отправляя заявку, вы даёте своё согласие Я полностью ознакомился и согласен с Пользовательским соглашением, Политикой обработки персональных данных и файлов Cookie, и предоставляю конкретное, предметное, информированное, сознательное и однозначное Согласие на обработку моих персональных данных. на обработку персональных данных.
Наш сайт защищен с помощью reCAPTCHA и соответствует Политике конфиденциальности и Условиям использования Google.
Каталог
Хотите арендовать апартаменты в МФК «Меркурий»?
Оставьте заявку, и эксперт проекта свяжется с вами и подберёт подходящий вариант
Оставить заявку
аренда апартаментов
Выбираете офисное помещение в башне «Меркурий»?
Оставьте заявку, и эксперт проекта свяжется с вами и подберёт подходящий вариант
Оставить заявку
коммерческая недвижимость

Расположение небоскрёба

МФК «Меркурий» расположен по адресу: Москва, 1-й Красногвардейский проезд, 15. Запишитесь на экскурсию на нашем сайте.
Деловой центр, 3 минуты
Москва-Сити, 3 минуты
ТТК – 2 минуты
Садовое кольцо – 10 минут

Места поблизости

  Афимолл Сити
1 минута
Афимолл Сити
  Парк «Красная Пресня»
18 минут
Парк «Красная Пресня»
  Дом Правительства РФ
8 минут
Дом Правительства РФ
  Красногвардейские пруды
14 минут
Красногвардейские пруды
  Гостиница Украина (Radisson)
9 минут
Гостиница Украина (Radisson)
  Парк Победы
11 минут
Парк Победы
  Московский Кремль
14 минут
Московский Кремль
  Патриаршие пруды
13 минут
Патриаршие пруды

Посмотрите другие проекты

Не нашли подходящий лот? Посмотрите другие проекты в комплексе «Москва-Сити».
Capital Towers
Capital Towers
от 59 550 000 ₽
от 83 м²
Neva Towers
Neva Towers
от 2 222 ₽
от 45 м²
Город Столиц
Город Столиц
от 16 300 000 ₽
от 16 м²
Федерация
Федерация
от 30 740 000 ₽
от 46 м²

Доступная ипотека

Подайте заявку на ипотеку и получите решение сразу из нескольких банков-партнёров.
Стоимость недвижимости
Первоначальный взнос
Срок кредитования
Лучшее предложение на основе вашего запроса:
Процентная ставка
от 21,9 %
Ежемесячный платёж
от 135 845
Банки партнёры:
Газпромбанк
ВТБ
Сбербанк
Альфа-Банк
Дистанционно одобрим ипотеку
Ставка от 21,9%
Решение за 72 часа
Ответ из нескольких банков
Решение в трудных ситуациях
Одобрить ипотеку
andrew
Анастасия
Ипотечный брокер

Вопросы и ответы

Что представляет собой небоскрёб «Меркурий»?

МФК «Меркурий» — это современный небоскрёб многофункционального формата, расположенный по адресу Москва, 1-й Красногвардейский проезд, 15, в деловом районе Москва-Сити. Комплекс объединяет офисные помещения, коммерческую инфраструктуру и жилые апартаменты.

Где расположен МФК «Меркурий» и чем удобна эта локация?

Башня «Меркурий» находится в Пресненском районе ЦАО Москвы, на территории Москва-Сити. Район отличается развитой инфраструктурой, удобной транспортной доступностью и высоким деловым и жилым статусом.

Какие функции объединяет МФК «Меркурий»?

Многофункциональный комплекс «Меркурий» включает офисные пространства, коммерческие площади, сервисные зоны и жилые апартаменты. Такой формат делает здание удобным как для работы, так и для проживания в центре Москвы.

Есть ли в небоскрёбе «Меркурий» жилые апартаменты?

Да, в составе небоскрёба предусмотрены жилые апартаменты, которые подходят для проживания. Апартаменты расположены на отдельных этажах и интегрированы в общую инфраструктуру комплекса.

Какая инфраструктура расположена в самом комплексе и рядом с ним?

В МФК «Меркурий» и в ближайшем окружении находятся рестораны, кафе, магазины, фитнес-клубы, банки, гостиницы и деловая инфраструктура Москва-Сити, что делает комплекс удобным для работы и проживания.

Предусмотрена ли парковка в МФК «Меркурий»?

В небоскрёбе МФК «Меркурий» предусмотрен подземный паркинг для резидентов, сотрудников и гостей комплекса, что является важным преимуществом для недвижимости в центре Москвы.

Сколько стоит недвижимость в комплексе «Меркурий»?

Стоимость недвижимости в МФК «Меркурий» зависит от типа помещения, площади, этажа и видовых характеристик. Актуальные цены на апартаменты и коммерческие площади можно уточнить у нашего эксперта.

Запишитесь на просмотр
Укажите свои контакты и менеджер свяжется с вами, чтобы уточнить удобное время просмотра
arrow-up
Кирилл